Brandis

Brandis

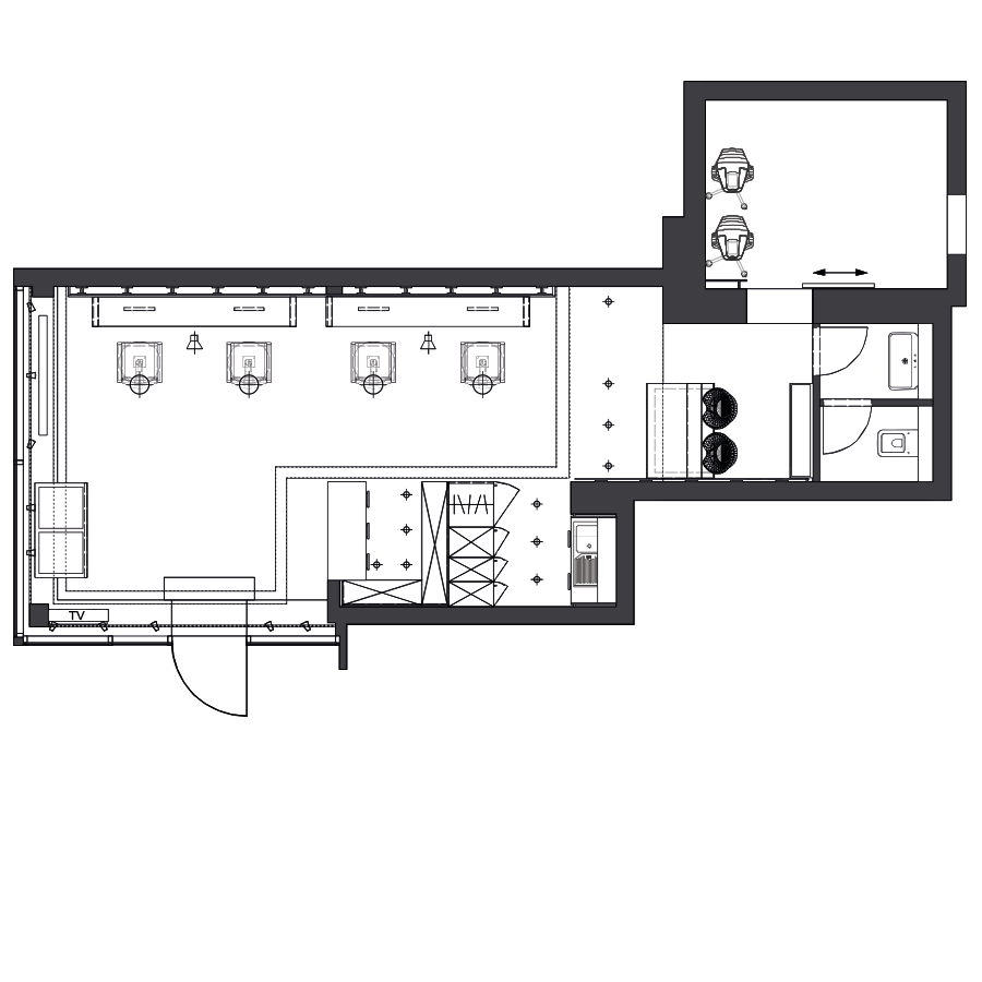
  • Bedienplätze: 4
  • Größe: 50 m²
Brandis
Brandis
Brandis
Brandis
Brandis
Brandis
Brandis
Brandis
Brandis
Brandis
Brandis
Brandis
Brandis
Brandis
Brandis
Brandis
Brandis
Brandis
Brandis
Brandis
Brandis
Brandis
Brandis
Brandis
Brandis

Prächtig. Weiß.

Brandis präsentiert sich als ein wahres Meisterwerk moderner Salonarchitektur – ein Ort, an dem Eleganz und Funktionalität in einer perfekten Symbiose verschmelzen. Ein Ambiente zum Wohlfühlen bietet diese Einrichtung in einer reinen weißen Pracht, die dem Salon eine elegante und gleichzeitig luftige Atmosphäre verleiht. Das Zusammenspiel aus hochglänzenden Oberflächen, Edelstahl und einer perfekten Beleuchtung sorgt für eine atemberaubende Lichtinszenierung, die den Raum in sanftem Glanz erstrahlen lässt. Besonders beeindruckend ist die komplette Spiegelfront, die nicht nur die Dimensionen des Raumes vergrößert, sondern auch eine reflektierende Tiefe schafft, die den Salon beinahe grenzenlos erscheinen lässt. Hier trifft prächtig und weiß auf zeitlose Modernität – eine Ästhetik, die ein Gefühl von Exklusivität und Perfektion vermittelt.

Die gezielte Platzierung der Lichtquellen sorgt dafür, dass jeder Winkel des Salons optimal ausgeleuchtet ist, was nicht nur die Atmosphäre anhebt, sondern auch für die Arbeit des Friseurs ideale Bedingungen schafft. Die weiße Farbgebung wird durch edle Akzente aus Edelstahl und klaren Linien abgerundet, wodurch ein harmonisches Gesamtbild entsteht. Der Kunde fühlt sich in dieser opulenten, doch gleichzeitig ruhigen Umgebung wie im siebten Himmel – die perfekte Mischung aus Luxus und Ruhe. Der Raum fördert Entspannung und Wohlbefinden, was den Aufenthalt zu einem echten Erlebnis macht.

Ein besonderes Highlight ist der großzügige Empfangsbereich, der mit einer stilvollen Theke in Hochglanz-Weiß gestaltet wurde. Diese markante Empfangszone unterstreicht den luxuriösen Charakter des Salons und schafft bereits beim Betreten einen bleibenden ersten Eindruck. Ergänzt wird das Design durch die exklusiven Bedienplätze mit individuell beleuchteten Spiegeln, die nicht nur für ein brillantes Licht sorgen, sondern auch das edle Gestaltungskonzept nahtlos fortführen.

Der offene Raum bietet zudem viel Platz für individuelle Gestaltungsmöglichkeiten und setzt mit der Spiegelwand einen eleganten Fokus, der sowohl funktional als auch ästhetisch ist. Die edlen, weißen Loungemöbel im Wartebereich laden zum Verweilen ein und sorgen für ein exklusives Wohlfühlambiente, während dezente Gold- und Silberdetails dem Raum zusätzliche Raffinesse verleihen. Hier werden nicht nur Haare geschnitten, sondern auch Erlebnisse kreiert, die Brandis zu einem unvergleichlichen Ort der Schönheit und Entspannung machen.

IDEA Friseureinrichtung
Follow us on Instagram
Jetzt folgen und keine Trends mehr verpassen!
Monatliche Angebote, brandheiße Infos, neue Kollektionen und vieles mehr!