Oliver's Hair Köln

Oliver's Hair Köln

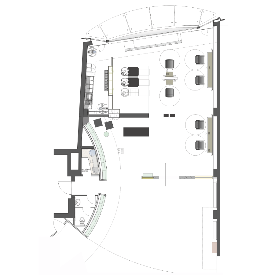
  • Bedienplätze: 6
  • Größe: 148 m²
Oliver's Hair Köln
Oliver's Hair Köln
Oliver's Hair Köln
Oliver's Hair Köln
Oliver's Hair Köln
Oliver's Hair Köln
Oliver's Hair Köln
Oliver's Hair Köln
Oliver's Hair Köln
Oliver's Hair Köln

Modern. Klar. Exklusiv.

So lässt sich das Konzept von Oliver's Hair Köln am treffendsten beschreiben. Hier vereinen sich ein exklusives Wohlfühlambiente mit erstklassigen, hochwertigen Dienstleistungen, die den Besuch zu einem ganz besonderen Erlebnis machen. Der einzigartige Spirit des Coiffeurs schafft eine Atmosphäre, die modern, klar, exklusiv ausstrahlt, dabei jedoch immer zugänglich und bezahlbar bleibt.

Die großzügige Raumaufteilung des Salons lädt dazu ein, sich vollkommen fallen zu lassen und eine wohlverdiente Auszeit vom Alltag zu genießen. Jeder Bereich wurde mit größter Sorgfalt gestaltet, um ein Gefühl der Ruhe und Entspannung zu vermitteln. Der herrschaftliche Boden im klassischen Fischgrätmuster bildet dabei das Herzstück des Farbkonzepts und verleiht dem gesamten Raum eine edle und zugleich warme Ausstrahlung. Die harmonische Verbindung von Material und Design schafft eine Atmosphäre, die sowohl modern, klar, exklusiv als auch zeitlos ist.

In diesem Salon treffen Ästhetik und Funktionalität perfekt aufeinander. Der Raum wird nicht nur durch seine stilvolle Einrichtung, sondern auch durch die liebevolle Detailsgestaltung zu einem Ort der Erholung, an dem sich jeder Kunde willkommen und wohl fühlt. Oliver's Hair Köln bietet eine moderne, klare Gestaltung, die dennoch ein exklusives und gemütliches Ambiente vermittelt. Die Kombination aus traditionellem Charme und modernem Luxus macht Oliver’s Hair Köln zu einem unverwechselbaren Erlebnis, das man immer wieder gerne aufsuchen möchte.

Besonders hervorzuheben ist der persönliche Service, der im Salon großgeschrieben wird. Die freundlichen und hochqualifizierten Mitarbeiter schaffen es, die Wünsche und Vorstellungen der Kunden präzise umzusetzen und dabei stets ein maßgeschneidertes Ergebnis zu erzielen. Jeder Besuch wird mit einem individuellen Beratungsprozess begleitet, der auf die persönlichen Bedürfnisse und Wünsche eingeht. Hier versteht man es, mit einem klaren Fokus auf Qualität und Ästhetik eine außergewöhnliche Erfahrung zu bieten, die den Salon zu einem exklusiven Rückzugsort für anspruchsvolle Kunden macht.

Die luxuriösen Dienstleistungen, kombiniert mit einer Atmosphäre von Ruhe und Entspannung, machen Oliver's Hair Köln zu einem Ort, an dem man nicht nur die beste Pflege für Haare und Haut bekommt, sondern auch Körper und Geist in Einklang bringt. Diese Oase im Herzen von Köln wird schnell zum Lieblingsort für all diejenigen, die sich nach einer Auszeit von der Hektik des Alltags sehnen und dabei höchsten Ansprüchen gerecht werden möchten. Ein Besuch im Oliver's Hair Köln ist nicht nur eine Haarbehandlung, sondern eine ganzheitliche Auszeit, die neue Energie und Frische verleiht.

IDEA Friseureinrichtung
Follow us on Instagram
Jetzt folgen und keine Trends mehr verpassen!
Monatliche Angebote, brandheiße Infos, neue Kollektionen und vieles mehr!