New Hair by Timo Fuchs

New Hair by Timo Fuchs

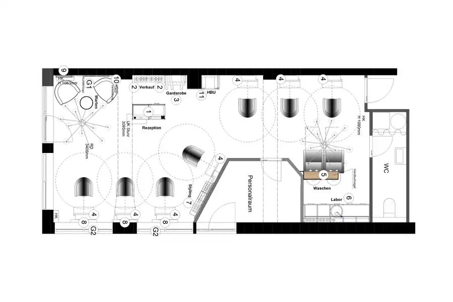
  • Bedienplätze: 7
  • Größe: 60 m²
New Hair by Timo Fuchs
New Hair by Timo Fuchs
New Hair by Timo Fuchs
New Hair by Timo Fuchs
New Hair by Timo Fuchs
New Hair by Timo Fuchs
New Hair by Timo Fuchs
New Hair by Timo Fuchs

Klar, modern, durchdacht

NEW HAIR by Timo Fuchs ist der perfekte Beweis dafür, wie stilsicheres Interior-Design und professionelle Friseurkunst harmonisch ineinandergreifen. In dem lichtdurchfluteten Salon trifft natürliche Wärme auf strukturierten Minimalismus: Holzlamellen an den Wänden verleihen dem Raum Tiefe und Charakter, während weiße Oberflächen und gezielt eingesetzte Schwarzakzente für ein stilvolles Gleichgewicht sorgen.
Der Empfangsbereich heißt Kund:innen mit einer eleganten Kombination aus weißen Thekenelementen und warmen Holztönen willkommen. Hier verschmelzen Ästhetik und Funktionalität – stilvolle Dekoration trifft auf strukturierte Organisation.
Die Rezeption ist zentraler Anlaufpunkt und optisches Highlight zugleich: Aufgeräumt, offen und kundenorientiert gestaltet, vermittelt sie sofort Vertrauen und Professionalität.
Im Verkaufsbereich stehen hochwertige Pflegeprodukte in Szene gesetzt – klar gegliedert, gut beleuchtet und perfekt eingebunden ins Gesamtkonzept. Kunden können hier in entspannter Atmosphäre stöbern und sich beraten lassen.
Die Bedienplätze überzeugen mit Großzügigkeit, Komfort und stilvoller Zurückhaltung. Große Spiegel, natürliche Materialien und angenehmes Licht schaffen ein ruhiges Setting, in dem sich Kund:innen voll und ganz auf ihre Beauty-Auszeit konzentrieren können.
Der Waschbereich ist ein Rückzugsort mit Spa-Charakter: in sanften Tönen gehalten, mit durchdachter Beleuchtung und ergonomischem Komfort. Hier wird Haarpflege zur echten Entspannungserfahrung.

IDEA Friseureinrichtung
Follow us on Instagram
Jetzt folgen und keine Trends mehr verpassen!
Monatliche Angebote, brandheiße Infos, neue Kollektionen und vieles mehr!