Maison Stendhal

Maison Stendhal

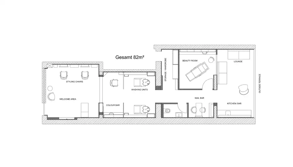
  • Bedienplätze: 3
  • Größe: 81 m²
Maison Stendhal
Maison Stendhal
Maison Stendhal
Maison Stendhal
Maison Stendhal
Maison Stendhal
Maison Stendhal
Maison Stendhal

Couture & Beauté

Maison Stendhal steht für eine minimalistische Eleganz, die sich konsequent durch das gesamte Designkonzept zieht. Die Einrichtung besticht durch einen schlichten Schwarz-Weiß-Look mit klaren Linien und einer harmonischen Formsprache. Durch die zurückhaltende Farbgestaltung entsteht ein modernes und stilvolles Ambiente, das Ruhe und Raffinesse ausstrahlt.

Die Wände in edler Betonoptik setzen einen urbanen Akzent und bilden einen spannenden Kontrast zu den hochwertigen Materialien des Interieurs. Besonders die weißen Marmorböden verleihen dem Raum eine luxuriöse Note und unterstreichen die minimalistische Ästhetik mit einem Hauch von Exklusivität. Dezente Messingdetails an Möbeln und Leuchten setzen feine, elegante Akzente, die den Stil des Salons perfekt abrunden.

Ein außergewöhnliches Highlight ist die Gestaltung der Bedienplätze. Statt klassischer Lösungen setzt Maison Stendhal auf bodentiefe Spiegel, die durch ihre schlichte Eleganz überzeugen. Sie sind klar strukturiert und fügen sich nahtlos in das Gesamtkonzept ein. Die Ablageflächen und Steckplätze wurden bewusst ausgelagert, um die minimalistische Formsprache nicht zu unterbrechen und eine aufgeräumte, offene Raumwirkung zu erzielen.

Ein weiteres gestalterisches Element, das den Salon einzigartig macht, ist das durchdachte Beleuchtungskonzept. Sanftes, indirektes Licht sorgt für eine warme, schmeichelnde Atmosphäre, während gezielte Spots die perfekte Ausleuchtung für präzise Handwerkskunst bieten. So entsteht eine Umgebung, in der sich Kundinnen und Kunden nicht nur verwöhnen lassen, sondern auch in eine Welt der Ästhetik eintauchen können.

Besonders hervorzuheben ist die exklusive Lounge-Ecke, die den Salon von herkömmlichen Friseurräumen abhebt. Hier können Kundinnen und Kunden in stilvollen Sitzmöbeln entspannen, während sie auf ihre Behandlung warten oder sich nach einem perfekten Styling einen Moment der Ruhe gönnen. Hochwertige Materialien, weiche Stoffe und dezente Düfte schaffen eine Atmosphäre, die an die Eleganz eines Designer-Showrooms erinnert – ein Ort, an dem Schönheit und Entspannung auf höchstem Niveau verschmelzen.

Das Ergebnis ist ein durchdachtes, stilvolles Interieur, das Design, Funktionalität und eine angenehme Wohlfühlatmosphäre auf einzigartige Weise vereint. Maison Stendhal verbindet Couture & Beauté, modernes Understatement mit zeitloser Eleganz und schafft einen exklusiven Rückzugsort, der höchste Handwerkskunst mit luxuriösem Flair verbindet. Ein Salon, in dem Schönheit, Stil und Perfektion aufeinandertreffen.

IDEA Friseureinrichtung
Follow us on Instagram
Jetzt folgen und keine Trends mehr verpassen!
Monatliche Angebote, brandheiße Infos, neue Kollektionen und vieles mehr!